Simple examples for calculating weight are given here.
1) Calculate the weight of the cast iron rectangular bar as shown in fig. Assume density of cast iron as 0.0072 gm/mm^3.

Solution:
Volume = length x breadth x height
= 100 x 30 x 25
= 75000 mm^3
Hence,
Weight of the rectangular bar= Volume x density of Cast iron
= 75000 x 0.0072
= 540 gm
= 0.54 kg.
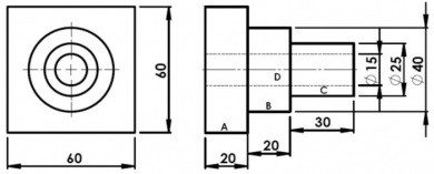
2) Calculate the weight of the mild steel part as shown in fig. Assume density of mild steel as 0.0078 gm/mm^3.

Solution:
Break up the part into four following simple parts as A, B, C & D.
Volume of A = l x b x h
= 60 x 20 x 60
= 72000 mm^3
Volume of B = (π x d^2 x l)/4
= (π x 40^2 x 20)/4
= 8000 π mm^3
Volume of C = (π x d^2 x l)/4
= (π x 25^2 x 30)/4
= 4687.5 π mm^3
Volume of D = (π x d^2 x l)/4
= (π x 15^2 x 70)/4
= 3937.5 π mm^3
Then,
Total Volume = Volume of A + Volume of B + Volume of C – Volume of D
= 72000 + 8000 π + 4687.5 π – 3937.5 π
= 72000 + (8750 π)
= 99492.5 mm^3
Hence,
Weight of the part = Total volume x density of mild steel
= 99492.5 x 0.0078
= 776.0415 gm
= 0.776 kg.